
ÉPÜLETEK
Átépíthető épületek – új életre kellő épületek
Egy régi épület új arcot kaphat: modern belső, megújult homlokzat, a város értékeinek megőrzése mellett. Kisebb vagy nagyobb ráfordítással ezek az épületek valódi befektetési és esztétikai lehetőséget kínálnak:
Új funkciók, korszerű komfort és design
Történelmi értékek megtartása, a város karakterének erősítése
A városképet szépítő, inspiráló, hosszú távú érték
Az átépített épületek emelik a város szépségét, új életet lehelnek a környezetbe, és utódaink is élvezhetik az újragondolt, megújult épületeket.

202616 érvényes átépítési engedéllyel
Üllői útnál, kiváló tömegközlekedéssel
Ez az épület korábban a repülőtér irodaháza volt. Műanyag ablakokkal és jó állapotú tetővel rendelkezik, így ezeket nem szükséges cserélni.
A belső tér átalakítása szükséges, amit könnyen el lehet végezni.
A telek saroktelkes, jó benapozottsággal, a helyiségek világosak.
A környéken 3 percre található villamosmegálló, így a közlekedés ideális. Az épület alkalmas bérház, kollégium vagy akár egy 21 lakásos lakópark kialakítására is.
Az ár 1,3 milliárd forint, de van lehetőség alkuval csökkenteni.
Telek jellemzői: Méret: 2135 m²
- Utcafront: kb. 38,5,0 m × 55,5 m
- Közművesítettség: teljes összközművesített (víz, csatorna, villany, gáz)
Parkolás:
- 25 db számozott udvari parkoló (térköves burkolat)
- 7 db utcai parkoló (murvás burkolat, közterület)
Épület jellemzői: - Szerkezet: Vasbeton vázas
- Fűtési rendszer: Gázüzemű központi fűtés, az északi és déli szárny külön kazánházzal rendelkezik.
- Tető: Cserepeslemez fedés, 2018-ban felújítva
- Nyílászárók: Műanyag ajtók és ablakok, 2021-ben teljes cseréjük megtörtént
- Kialakítás: Álmennyezetes kialakítású belső terek
- Fejlesztési lehetőség: Hőszivattyús hűtési-fűtési rendszer kialakítására alkalmas
- Összes hasznos alapterület: 2158 m²
Épületszárnyak részletezése:
1. Északi szárny (alagsor + 3 emelet, összesen 744 m²):
- Alagsor: 244 m² 1. emelet: 215 m² 2. emelet: 218 m²
- 3. emelet (tetőtér): 67 m²
2. Déli szárny (földszint + 2 emelet, összesen 1319 m²):
- Földszint: 447 m² 1. emelet: 436 m² 2. emelet: 436 m²
13. Kis ház (földszint + tetőtér, összesen 95 m²):
Földszint: 58 m² Tetőtér: 37 m²
Történeti háttér és jelenlegi funkció:
Az épület eredetileg a Ferihegy Airport Igazgatóságának székhelyeként szolgált 2006-ig,
jelenleg irodaházként üzemel.
Fejlesztési lehetőségek:
Az ingatlan funkciója a jövőben rugalmasan alakítható:
- Lakáscélú hasznosítás:
- 21 lakásos társasház kialakítása lehetséges önálló hrsz-en
- Alternatív megoldás: 32–44 lakás, osztatlan közös tulajdonban
- Egyéb funkciók:
- Jógastúdió, fittneszközpont, egészségügyi szolgáltató, hospise vagy más közösségi célú
hasznosítás
Lokáció és közlekedés:
- Villamosmegálló: 200 m (50-es villamos, Üllői út)
- M3 metrómegálló (KÖKI terminál): 3 km
- Liszt Ferenc Nemzetközi Repülőtér: 10 km (15 perc autóval)
- Corvin-negyed: 8,7 km (15 perc autóval)
- Nyugati pályaudvar: 12 km (23 perc autóval, 40 perc metróval

10500
Fejlesztési lehetőség – átépíthető épület Budapest VI. kerületében
Telek területe: 750 m², Felépítmény alapterülete: 2 700 m², Szobák száma: 67, Állapot: kiváló, Átalakíthatóság: szárazépítéssel, belsőépítészeti elemekkel könnyen átalakítható
Engedély: érvényes építési engedéllyel rendelkezik
Elhelyezkedés: Budapest VI. kerületében, kiváló helyen, metrómegállóhoz közel
Kivételes fejlesztési potenciál
Eladó egy átépíthető épületkomplexum Budapest VI. kerületében, metróközeli, frekventált lokációban. Az ingatlan kiváló állapotban van, 67 szobával rendelkezik, és gyorsan, költséghatékonyan alakítható át különböző funkciókra csupán belsőépítészeti, szárazépítési módszerekkel.
Projekt részletei Épület alapterülete: 2 700 m² Telek mérete: 750 m² Összesen: 67 szoba Kiváló állapotú épület. Belsőépítészeti átalakítással rugalmasan fejleszthető. Érvényes építési engedéllyel rendelkezik. Befektetőknek ideális: lakásfejlesztés, bérbeadás, coliving, apartmanhotel, munkásszálló
Befektetési előnyök
Kiemelt lokáció Budapest VI. kerületébe. Metróhoz közeli, kiváló megközelíthetőség. Gyors, szerkezetet nem érintő átalakítási lehetőség. Rugalmas térkialakítás, többféle felhasználási mód. Ideális ingatlanfejlesztők és befektetők számára
További információ
Részletes alaprajzok és fejlesztési koncepció személyes megtekintéskor elérhetők.

10367 Budapest Belváros szívében elhelyezkedő, impozáns, műemléki védettségű épület eladó, amely egyedülálló lehetőséget kínál fejlesztők és befektetők számára. Az ingatlan teljes alapterülete 6 000 m², amelyhez saját parkoló is tartozik.
Az épület kivételes adottságainak és elhelyezkedésének köszönhetően többféle hasznosítási lehetőséget kínál. Kiválóan alkalmas apartmanház, boutique hotel vagy luxus irodaház kialakítására. A reprezentatív homlokzat, a nagy belmagasságú terek és a történelmi hangulat különleges atmoszférát biztosítanak a leendő funkciónak.
Az ingatlan a város egyik legértékesebb lokációjában található, közvetlen közelében üzletek, éttermek, közlekedési csomópontok és kulturális intézmények. A parkolóhelyek a belvárosi környezetben kiemelkedő előnyt jelentenek, így az épület ideális alapot biztosít prémium fejlesztési projektekhez.
Kivételes lehetőség azok számára, akik egy történelmi értéket képviselő, ugyanakkor modern igények szerint újragondolható ingatlant keresnek a belváros legjobb helyén.
További információ
Részletes alaprajzok és fejlesztési koncepció személyes megtekintéskor elérhetők.

10368 Fejlesztési lehetőség – átépíthető lakások Budapest X. kerületében
Telek területe: 4 037 m²
Felépítmény alapterülete: kb. 2 000 m²
Kivételes fejlesztési potenciál
Eladó egy átépíthető épületkomplexum Budapest X. kerületében, amely lakásfejlesztésre ideális. A négy szárnyból álló, három utcára nyíló épületegyüttesben a befektetők közel 16 típusú lakásból választhatnak, így rugalmas lehetőséget biztosítva különböző célcsoportoknak.
Projekt részletei
Minden épületben további 25 lakás kialakítása tervezett
Emeletenként 6–7 lakásTeljes terület: 4 037 m²
Felépítmény alapterület: kb. 2 000 m²
Befektetőknek ideális: lakásfejlesztés, bérbeadás vagy értékesítés
Befektetési előnyök
Kiemelt lokáció Budapest X. kerületében
Nagy átépítési potenciál és rugalmas elosztás
Többféle lakástípus kialakításának lehetősége
Ideális ingatlanfejlesztők és befektetők számára
További információ
Részletes alaprajzok és fejlesztési koncepció személyes megtekintéskor elérhetők.

10369 Exkluzív fejlesztési lehetőség Budapest VI. kerületében, a Diplomatanegyedben
Irányár: 10 000 000 €
Telek mérete: 1 200 m²
Felépítmény: 3 900 m²
Felépítményre vetített ár: 2 564 €/m²
Kiemelt lokáció – Budapest Diplomatanegyede
Kivételes lehetőség a főváros egyik legelőkelőbb és legkeresettebb városrészében, a VI. kerületi Diplomatanegyedben. A környék elegáns, zöldövezeti utcái, nagykövetségek, reprezentatív villák és történelmi épületek teszik különlegessé. Néhány perc sétára található az Andrássy út, a Hősök tere és a Városliget, Budapest kulturális és turisztikai központja.
Ingatlan jellemzői
A 1 200 m²-es telek egy 3 900 m² összterületű épületet foglal magában, amely kiváló alapot biztosít prémium kategóriás fejlesztésekhez vagy átalakításhoz. Az ingatlan mérete, adottságai és elhelyezkedése ideálissá teszik:
luxus lakóépület vagy társasház kialakítására,
boutique hotel vagy apartmanház fejlesztésére,
illetve nagykövetségi vagy irodai központ céljára.
Befektetési előnyök
Prémium lokáció Budapest egyik legértékesebb városrészében
Kedvező ár / érték arány – 2 564 €/m²
Kiváló közlekedés és könnyű megközelíthetőség
Erős értéknövekedési potenciál a belvárosi ingatlanpiacon
Presztízs környezet, nagykövetségek és luxusépületek szomszédságában
Miért érdemes Budapestre befektetni
Budapest Közép-Európa egyik legdinamikusabban fejlődő fővárosa, ahol a történelmi örökség és a modern fejlesztések harmonikusan találkoznak. A Diplomatanegyed stabil, hosszú távon értékálló befektetési célpont, amely különösen vonzó a nemzetközi befektetők és fejlesztők számára.
További információ
Részletes dokumentáció, alaprajzok és pénzügyi adatok személyes egyeztetés során érhetők el.

10370 Fejlesztési lehetőség Budapest VI. kerületében, az Andrássy út közelében
Irányár: 1 900 000 €
Övezet: Ln-1/VI/1
Telek mérete: 450 m²
Hasznosítás: lakóingatlan vagy szálláshely fejlesztés
Kivételes lokáció – Andrássy út közvetlen közelében
Eladó egy sokoldalúan hasznosítható ingatlan Budapest VI. kerületének egyik legértékesebb részén, az Andrássy útvonzáskörzetében. A környék elegáns, történelmi hangulatú épületeiről és kiváló közlekedési kapcsolatairól ismert. A közeli Oktogon, Opera és Városliget gyalogosan is könnyen elérhető, így az ingatlan ideális mind lakó, mind kereskedelmi vagy turisztikai célokra.
Ingatlan jellemzői
Telek mérete: 450 m²
Övezeti besorolás: Ln-1/VI/1
Az épület belső átalakítással könnyen átalakítható
Alkalmas lakások vagy szálláshely (apartmanház, boutique hotel) kialakítására
Irány ár: 1,9 M €

10371 Fejlesztési lehetőség Budapest VI. kerületében, a Diplomatanegyedben
Irányár: 5 000 000 €
Telek mérete: 850 m²
Felépítmény: 2 400 m²
Felépítményre vetített ár: 2 083 €/m²
Kivételes lokáció – Budapest elegáns Diplomatanegyede
Eladó egy kiemelkedő adottságokkal rendelkező ingatlan Budapest VI. kerületében, a Diplomatanegyed szívében, közel az Andrássy úthoz és a Városligethez. A környéket a nagykövetségek, impozáns villák és történelmi épületekhatározzák meg, így az ingatlan tökéletesen illeszkedik a presztízs környezethez.
Ingatlan jellemzői
Telek területe:850 m²
Felépítmény összesen:2 400 m²
Fejlesztési koncepciók:
Boutique hotelvagy prémium szálloda
Modern irodaházExkluzív társasház / lakóprojekt
Felépítményre vetített ár:
2 083 €/m²
Kiváló fejlesztési potenciálegy kiemelten keresett lokációban
Befektetési előnyök Diplomatanegyed – elit környezet a város egyik legértékesebb területén Rugalmas hasznosítási lehetőségek (szálláshely, iroda, lakófunkció) Könnyű megközelíthetőség és infrastruktúra (Andrássy út, Hősök tere, metró, trolibusz) Erős értéknövekedési potenciál és stabil hozam
Ideális alap fejlesztők és befektetők számára, akik prémium kategóriás projektet keresnek

10372 Fejlesztési lehetőség Budapest VI. kerületében – Diplomatanegyed
Irányár: 8 000 000 €
Telek: 1 400 m² | Felépítmény: 3 700 m² | Belmagasság: 3,8–4,2 m
Kivételes fejlesztési ingatlan a Budapest VI. kerületi Diplomatanegyedben, nem műemléki státuszú, így nagy szabadságot biztosít felújításra vagy átalakításra. Az ingatlan ideális luxus irodaház, boutique hotel vagy prémium lakóprojekt kialakítására.
Fő előnyök:Presztízs lokáció Budapest szívében Tágas, világos belső terek Kiváló közlekedés és infrastruktúra Magas értéknövekedési potenciál
További információk személyesen elérhetők.

10373 Fejlesztési lehetőség Budapest XIV. kerületében – meglévő irodaház átalakítható társasházzá (ZS/1)
Irányár: 815 000 000 HUF
Telek: 1 115 m² | Felépítmény: 5 szint, 2 000 m²
Telekára: 730 942 HUF/m² | Felépítmény ára: 407 500 HUF/m²
Ingatlan jellemzői Meglévő irodaház, amely átalakítható társasházzá vagy lakóprojektté Lakóprojekt esetén két szint hozzáépíthető, további 800 m² Víz, villany az épületben, lift részben kiépítve Eredeti építési engedély (lejárt): üzlethelyiség, bemutatóterem, lakás, iroda Kiváló fejlesztési potenciál a XIV. kerületben
Befektetési előnyök Rugalmas hasznosítás: lakó, iroda, kereskedelem vagy vegyes funkció Erős értéknövekedési potenciál a fővárosi lakópiacon Könnyen hozzáférhető infrastruktúra és közlekedés Ideális fejlesztők és befektetők számára, akik prémium lakóprojektet vagy vegyes funkciójú ingatlant keresnek
További információ
Részletes műszaki dokumentáció, alaprajzok és fejlesztési koncepció személyesen elérhetők..

10374 Fejlesztési lehetőség Budapest VI. kerületében – Városliget közelében
Irányár: 17 000 000 €
Telek mérete: 3 700 m²
Felépítmény: 4 900 m² (bővíthető 5 900 m²)
Parkoló: 22 db
Kivételes lokáció – Városliget közelében, Budapest VI. kerület
Az ingatlan Budapest VI. kerületének egyik legkeresettebb részén, a Városliget közvetlen közelében található. A környék turisztikailag és befektetési szempontból kiemelkedően értékes, így az ingatlan ideális szálloda, prémium lakó- vagy vegyes funkciós fejlesztés számára.
Ingatlan jellemzői és lehetőségek
Telek: 3 700 m²
Felépítmény: 4 900 m² (további bővítés lehetséges 5 900 m²-ig) Parkoló: 22 db
Jelenlegi állapot: jó állapotú épület
Fejlesztési lehetőség:akár 120 szobás szálloda kialakítása
Befektetési előnyök Prémium lokáció a Városliget és a belváros közelségében
Bővíthető építményméret, magas hozamú szállodaprojektre alkalmas
Könnyű megközelíthetőség, központi infrastruktúra
Ideális befektetők, fejlesztők és hotelüzemeltetők számára
További információRészletes dokumentáció, alaprajzok és fejlesztési koncepciók személyesen elérhetők.

10375 Eladó társasház Budapest XI. kerületében – Gellért-hegy
Eladási ár: 12,8 M €
Telek mérete: 1 221 m²
Épület: 4 szintes, 2 000 m²
Parkoló: 10 db
Kivételes lokáció – Gellért-hegy, Budapest XI. kerület
Az ingatlan Budapest egyik legexkluzívabb területén, a Gellért-hegyen található, csendes, zöldövezeti környezetben, mégis közel a belvároshoz. A társasház 4 szintes, 6 külön lakással rendelkezik, és két éve teljes felújításon esett át, így modern, prémium minőségű belső terekkel rendelkezik.
Ingatlan jellemzői
Telek: 1 221 m² Épület: 2 000 m²
Parkoló: 10 db
Különlegességek: medence, szauna, tágas teraszok
Felosztás: 6 lakás
Teljes felújítás: 2 éve
Befektetési előnyök
Prémium lokáció Budapest egyik legkeresettebb részén
Kiváló lakóingatlan vagy befektetési célú társasház
Modern és exkluzív szolgáltatások: medence, szauna, parkoló
Ideális magánszemélyeknek vagy befektetőknek, akik prémium ingatlant keresnek a Gellért-hegyen
További információ
Részletes alaprajzok és dokumentáció személyes megtekintéskor elérhetők.

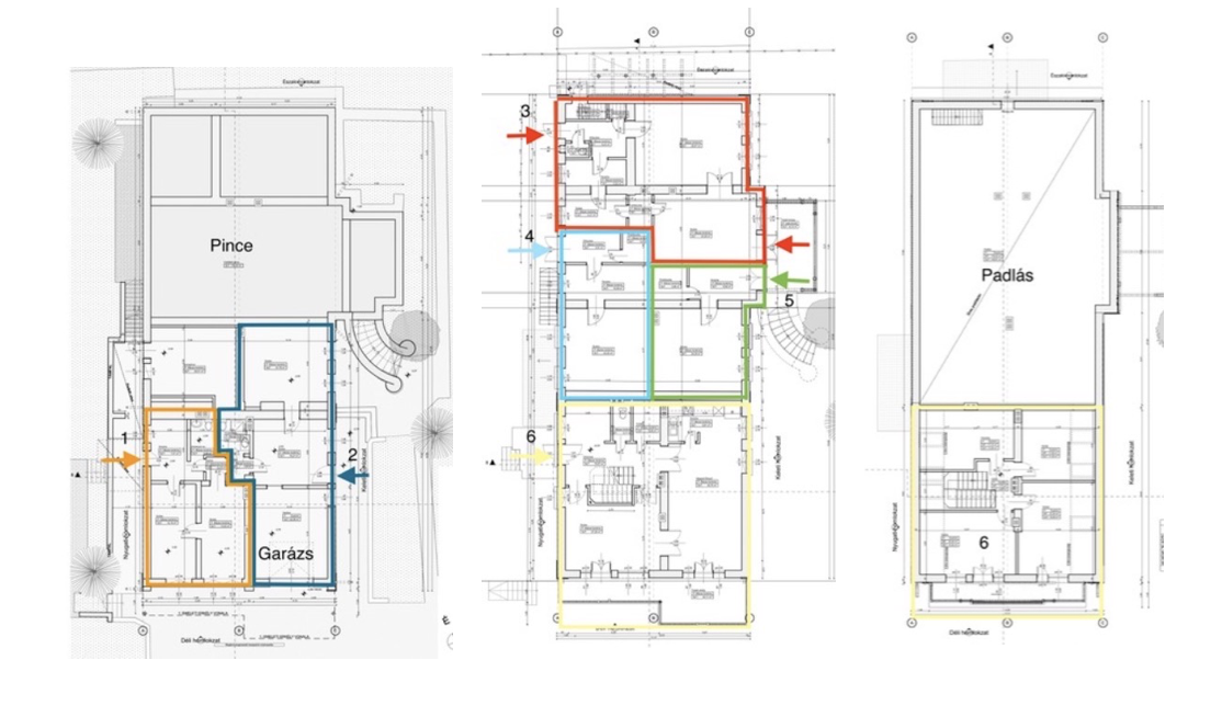
20262. Budapest II kerület
Az építési engedély egy háromlakásos társasház kialakítását teszi lehetővé, összesen 873,20 m² hasznos alapterülettel. A projekt engedélye jelenleg is hatályos, és az engedély tartalmazza egy gépészeti felvonó (lift) létesítését is. A tervezési koncepció kifejezetten nagy alapterületű, prémium kategóriás lakások kialakítására optimalizált, amely jól illeszkedik a **Budapest II. kerület belső, magas presztízsű lakókörnyezetéhez.
A fejlesztés kétféle koncepció szerint valósítható meg. Az első lehetőség három exkluzív luxuslakás kialakítása, amelyek lakásonként körülbelül 290 m² alapterületűek. Ebben a modellben minden lakás liftkapcsolattal, privát kertkapcsolattal vagy tetőterasszal, valamint 2–3 parkolóhellyel rendelkezhet. Ez a megoldás egy limitált, magas értékű prémium terméket hoz létre, amely a felső kategóriás vevői réteget célozza.
A második opció szerint a három lakás használati megosztással két-két egységre bontható, így összesen 6 kisebb, prémium lakás alakítható ki. Ez a struktúra rugalmasabb értékesítési stratégiát tesz lehetővé, szélesebb vevőkört szólít meg, és általában gyorsabb értékesítést és tőkeforgást eredményez.
A projekt értékesítési potenciálját erősíti, hogy a Budapest II. kerület belső részein az új építésű vagy prémium kategóriájú lakások jelenlegi piaci árszintje körülbelül 2,5–4,0 millió Ft/m² között alakul, ami stabil és magas értékű piacot jelent a hasonló fejlesztések számára.

10476 Átépíthető irodaház Budapest VII. kerületében – Kiváló fejlesztési lehetőség
Eladási ár: 1,5 milliárd HUF
Kivételes lokáció – Budapest VII. kerület
Ez a lenyűgöző, átépíthető irodaház a belváros szívében, Budapest VII. kerületében található, kellemes, barátságos környezetben. Az ingatlan ideális befektetőknek és fejlesztőknek, akik prémium projektet keresnek a város dinamikusan fejlődő részén.
Ingatlan jellemzői
Átépíthető irodaház a VII. kerületben
Szerkezetileg és statikailag alkalmas az átépítésre, ráépítésre vagy új funkciók kialakítására
Készültek átalakítási tervek, így a beruházó csak a megvalósítást kell, hogy befejezze
Kellemes, barátságos környezet, fás, tágas belső udvar
Lehetőség modern iroda, lakó- vagy vegyes funkció kialakítására
Befektetési előnyök
Kiemelkedő belvárosi lokáció
Rugalmas hasznosítási lehetőség: iroda, lakó, vegyes funkció
Zöld, nyugodt belső udvar, ami növeli az épület értékét
Ideális befektetőknek és fejlesztőknek, akik magas hozamú projektet keresnek

10377 Eladó irodaépület Budapest XII. kerületében
Eladási ár: 1,2 milliárd HUF
Telek: 956 m²
Épület: háromszintes + tetőtér
Ingatlan jellemzői
Földszint: 210 m² + szélfogó 12 m²
I. emelet: 210 m² + erkély 12 m²
II. emelet: 210 m² + erkély 12 m²
Tetőtér: 160 m²
Különálló zárt garázs: 80 m², 4 gépkocsi
Felszíni parkoló: 10 gépkocsi
Minden szinten vizesblokk, teakonyha, 3–4 dolgozószoba és nagy tárgyaló
Teraszok/erkélyek minden szinten
Jelenleg bérbe van adva, felmondási idő 3 hónap
Befektetési előnyök
Kiemelt lokáció Budapest XII. kerületében
Ideális irodaház, cégközpont vagy befektetési ingatlan
Saját zárt garázs és felszíni parkoló könnyű parkolást biztosít
Rugalmas lehetőség bérbeadásra vagy saját használatra
További információ
Részletes alaprajzok és dokumentáció személyes megtekintés alapján.

10379 Eladó prémium ingatlan Budapest VI. kerületében
Irányár: 18 000 000 €
Épület területe: 5 800 m²
Kivételes lokáció – Budapest VI. kerület
Budapest VI. kerületének kiemelt, belvárosi részén eladó egy 5.800 m²-es prémium ingatlan, amely ideális szállodává vagy luxuslakásokra történő átalakításra. A környék exkluzív és keresett, a parkolás megoldott, így a vendégek és a lakók kényelme biztosított.
Ingatlan jellemzői és lehetőségek
Épület területe: 5.800 m²
Prémium minőségű belvárosi ingatlan
Kiválóan alkalmas szálloda, boutique hotel vagy luxuslakás projekt kialakítására
Parkolóhelyek biztosítva a kényelmes használathoz
Befektetők és fejlesztők számára ideális
Befektetési előnyök
Kiemelkedő belvárosi lokáció a VI. kerület szívében
Rugalmas hasznosítási lehetőség szállodaként vagy luxuslakásokként
Kényelmes parkolás, magas befektetési potenciál
Ideális befektetőknek, fejlesztőknek és prémium ingatlanvásárlóknak
További információ
Részletes dokumentáció és megtekintés előzetes egyeztetés alapján.

10381 Fejlesztési lehetőség – szálloda építésre Budapest VI. kerületében
Irányár: 5 000 000 €
Telek/épület területe: 2 200 m²
Potenciális hasznosítás: 55 szobás szálloda
Kivételes lokáció – Andrássy út mellett, VI. kerület
Budapest VI. kerületében, Andrássy út közvetlen közelében, eladó egy fejlesztésre alkalmas ingatlan, amely ideális 55 szobás szálloda kialakítására. Az épület homlokzata felújított, így a külső megjelenés már prémium minőséget képvisel, a belső terek pedig rugalmasan alakíthatók.
Ingatlan jellemzői
Telek/épület területe: 2 200 m²
Felújított homlokzat
Fejlesztésre alkalmas szálloda (55 szoba)
Kiemelt belvárosi lokáció, közel a kulturális és üzleti központokhoz
Befektetési előnyök
Exkluzív helyszín Budapest belvárosában, Andrássy út mellett
Kiváló turisztikai és üzleti befektetési potenciál
Rugalmas lehetőség szálloda, boutique hotel vagy vegyes funkció kialakítására
Ideális fejlesztők és befektetők számára
További információ
Részletes dokumentáció és személyes megtekintés előzetes egyeztetés alapján.

10382 Fejlesztési lehetőség – Budapest III. kerület, Duna-part közelében
Irányár: 5 000 000 €
Telek mérete: 9 300 m²
Felépítmény: 4 500 m²
Kiemelt lokáció – Duna-part közelében, III. kerület
Budapest III. kerületében, a Duna-part közvetlen közelében kínálunk eladásra egy nagy telekkel rendelkező ingatlant, amely alkalmas irodaház, hotel vagy cégközpont kialakítására. Az épület az 1980-as években épült, a meglévő szerkezet stabil és átépítésre alkalmas.
Ingatlan jellemzői
Telek: 9 300 m²
Felépítmény: 4 500 m²
Alkalmas irodaház, hotel, cégközpont kialakítására
Meglévő épületek
Termálvíz lehetőség
Dunai panoráma, prémium elhelyezkedés
Befektetési előnyök
Kiemelkedő lokáció a Duna-part közelében, III. kerület
Rugalmas hasznosítási lehetőség, akár turisztikai vagy üzleti célra
Termálvíz és panoráma, amelyek növelik a projekt értékét
Ideális fejlesztők és befektetők számára
További információ
Részletes dokumentáció és személyes megtekintés előzetes egyeztetés alapján.

10383 Eladó teljes épület Budapest belvárosában – Asztoria vonzáskörzet
Irányár: 8 000 000 €
Jelenlegi funkció: irodaház
Hasznosítás: irodaház, cégközpont, kollégium, hotel, luxus ingatlan
Kiemelt lokáció – Belváros, Asztoria
Budapest belvárosában, az Asztoria környékén, eladó egy teljes, műemlék jellegű épület, amely belső parkolókkalrendelkezik. A jelenleg irodaként működő ingatlan ideális cégközpontnak, kollégiumnak, hotelnek vagy luxuslakás fejlesztésre.
Ingatlan jellemzői
Teljes épület eladó
Belső parkolók a kényelmes használathoz
Műemlék épület
Jelenlegi funkció: irodaház
Rugalmas hasznosítás: cégközpont, kollégium, hotel, luxus ingatlan
Befektetési előnyök
Kiemelkedő belvárosi lokáció, Asztoria közelében
Műemlék jellegű ingatlan, prémium megjelenéssel
Alkalmas többféle fejlesztési célra
Ideális befektetőknek és ingatlanfejlesztőknek
További információ
Részletes dokumentáció és személyes megtekintés előzetes egyeztetés alapján.

10385 Eladó átépíthető ingatlan Budapest VIII. kerületében
Irányár: 6 000 000 €
Telek mérete: 750 m²
Épület területe: 1 500 m²
Kiemelt lokáció – Budapest VIII. kerület
Budapest VIII. kerületében eladó egy átépíthető ingatlan, amely jelenlegi állapotában is működtethető. Az épület két működő liftet tartalmaz, így az üzemeltetés azonnal megkezdhető.
Ingatlan jellemzői és lehetőségek
Telek: 750 m²
Épület: 1 500 m²
Alkalmas apartmanok, hotel, hostel vagy diákszálló kialakítására
Két lift üzemképes
Központi lokáció, kiváló közlekedéssel
Befektetési előnyök
Kiemelt városi elhelyezkedés Budapest VIII. kerületében
Rugalmas hasznosítási lehetőség: apartman, hotel, hostel vagy diákszálló
Azonnal üzembe helyezhető állapot
Ideális befektetőknek és fejlesztőknek
További információ
Részletes dokumentáció és személyes megtekintés előzetes egyeztetés alapján.

Irányár: 12 000 000 €
Épület területe: 5 000 m²
Kiemelt lokáció – Budapest VI. kerület
Budapest VI. kerületében, belvárosi kiemelt helyen, eladó egy 5000 m²-es korszerűsített irodaház, nagy belső átriummal. Az épület kívül-belül rendezett, így jelenlegi funkciójában irodaházként maradhat, vagy átalakítható hotelnek.
Ingatlan jellemzői
Épület területe: 5 000 m²
Nagy belső átrium, világos és tágas terek
Korszerűsített, rendezett homlokzat és belső terek
Lehetséges funkció: irodaház vagy hotel
Parkolási lehetőség az épületben autóval
Befektetési előnyök
Prémium belvárosi lokáció a VI. kerület szívében
Rugalmas hasznosítási lehetőség irodaházként vagy szállodaként
Nagy átrium és modern kialakítás növeli az ingatlan értékét
Ideális fejlesztőknek és befektetőknek
További információ
Részletes dokumentáció és személyes megtekintés előzetes egyeztetés alapján..

10388 Budapest --T--VI ker
Kiemelkedő Fejlesztési Lehetőség – VI. kerület, Budapest
Eladó Budapest VI. kerületében, kiemelkedő fejlesztési potenciállal rendelkező ingatlan.
A jelenlegi épület 1 099 m² hasznos alapterületű, amely akár 2 976 m²-re bővíthető, így jelentős fejlesztési lehetőséget kínál.
Lehetséges hasznosítások:
hostel, apartmanház, irodaház, cégközpont
Főbb adatok:
- Telek: 739 m²
- Jelenlegi alapterület: 1 099 m²
- Bővíthető alapterület: max. 2 976 m²
- Rugalmas funkciók, bővíthető épület
Az ingatlan fűtésrendszere korszerűsítésre szorul, így az új tulajdonos a fejlesztés során teljesen testre szabhatja az épületet.
Elhelyezkedés: Központi, jól megközelíthető rész, erős hosszú távú értéknövekedési potenciállal.
✔️ Jelentős bővítési lehetőség
✔️ Központi, frekventált lokáció
✔️ Rugalmas hasznosítás
✔️ Kiemelkedő befektetési potenciál
Irányár: 4 000 000 EUR
További információ
Részletes dokumentáció és személyes megtekintés előzetes egyeztetés alapján..

10389 Budapest --T- Sz--VIII kerület -meglévő épület és bővíthető terület
Kivételes lehetőség Budapest egyik kiemelt lokációjában! A projekt meglévő épületből és mellette lévő fejlesztési területből áll. Az egyik épületszárny szerkezetkész, a mellette lévő területre pedig új épületszárny építhető.
Főbb lehetőségek:
Lakások, apartmanok kialakítása
Hostel vagy diákszálló kialakítása
Vegyes funkciók, akár kombinált fejlesztés
Irányár: 16 M €
Ez az ingatlan ideális befektetőknek és fejlesztőknek, akik rugalmas, azonnal fejleszthető projektet keresnek Budapest belvárosában, magas megtérülési potenciállal.
További információ
Részletes dokumentáció és személyes megtekintés előzetes egyeztetés alapján..

10390 Fejlesztési lehetőség Budapest VI. kerületében – Andrássy út mellett
Irányár: 4 500 000 €
Telek: 762 m²
Épület: 800 m² (ráépítéssel akár 2 500 m²)
Kiemelt lokáció – Belváros, Andrássy út mellett
Budapest belvárosában, Andrássy út közvetlen közelében, eladó egy fejlesztésre alkalmas épület. A 762 m²-es telekre épült 800 m²-es ingatlan ráépítéssel és bővítéssel akár 2 500 m²-re növelhető, így kiváló lehetőség elegáns lakások, apartmanok vagy szálláshely kialakítására. A belső udvarban parkolóhelyek biztosítják a kényelmet.
Főbb előnyök
Fejlesztési potenciál: bővíthető 2 500 m²-re
Rugalmas felhasználás: luxus lakások, apartmanok, szálláshely
Belső udvar parkolóhelyekkel
Kiváló belvárosi lokáció, könnyen megközelíthető, keresett környék
Ideális befektetőknek és fejlesztőknek

10391Prémium ingatlan eladó Budapest I. kerületében – Duna-parti panoráma
Irányár: 19 000 000 €
Épület területe: 2 200 m²
Kiemelt lokáció – Budapest I. kerület, Duna-part
Eladó egy rendezett, 2 200 m²-es prémium ingatlan Budapest egyik egyedi és keresett lokációjában, a Duna-part közelében. Az épület azonnal hasznosítható, parkolóhelyek biztosítják a kényelmes megközelíthetőséget a látogatók és dolgozók számára.
Főbb előnyök
Lenyűgöző dunai panoráma, prémium elhelyezkedés
Rendezett, karbantartott épület, azonnal használható
Parkolóhelyek látogatók és dolgozók részére
Ideális befektetőknek, vállalati központnak vagy szálláshely kialakítására
Befektetési előnyök
Egyedi és keresett lokáció Budapest belvárosához közel
Kiváló lehetőség prémium ingatlan fejlesztésre vagy üzemeltetésre
Azonnali hasznosítás és magas befektetési potenciál

10392 Prémium ingatlan eladó Budapest V. kerületében – Szabadság tér közelében
Irányár: 36 000 000 €
Épület területe: 7 900 m²
Kivételes lokáció – Budapest belvárosa, V. kerület
Eladó egy impozáns, elegáns homlokzatú és reprezentatív lépcsőházzal rendelkező épület Budapest szívében, a Szabadság tér közelében, a Parlamenthez is könnyen megközelíthetően. Az ingatlan többféleképpen hasznosítható, így kiváló lehetőség befektetők, fejlesztők és vállalatok számára.
Lehetséges hasznosítási lehetőségek
4–5 csillagos hotel, központi elhelyezkedéssel és könnyű megközelíthetőséggel
Luxuslakások, prémium minőségű belső terekkel
Irodaház vagy cégközpont, impozáns megjelenéssel, kiemelve a vállalat presztízsét
Főbb előnyök
Kiváló belvárosi lokáció, Budapest egyik kiemelt negyede
Rendezett, jó állapotú épület, azonnal hasznosítható
Elegáns, reprezentatív homlokzat és belső terek
Ideális befektetőknek, fejlesztőknek és vállalatoknak
További információ
Részletes dokumentáció és személyes megtekintés előzetes egyeztetés alapján.

10393 Eladó fejlesztési ingatlan Budapest VIII. kerületében
Irányár: 6 500 000 €
Jelenlegi épület: 2 200 m²
Bővíthető terület: +3 500 m²
Kiemelt lokáció – Budapest VIII. kerület
Budapest VIII. kerületében, kiemelt lokációban, eladó egy fejlesztésre alkalmas ingatlan, amely ideális szálloda, hostel vagy kollégium kialakítására. A telek közel a metróhoz, parkolóházakhoz és minden fontos közlekedési lehetőséghez, így kiváló lehetőség befektetők és fejlesztők számára.
Főbb előnyök
Kiváló közlekedés: metró és busz 2–5 perc sétára
Parkolóház közelsége és könnyű megközelíthetőség
Fejlesztési lehetőség: szálláshely, kollégium vagy vegyes funkció
Jelenlegi terület: 2 200 m², bővíthető akár 3 500 m²-rel
Befektetési előnyök
Piacképes, központi fekvés Budapest belvárosában
Ideális befektetőknek és fejlesztőknek
Nagy potenciál a turisztikai vagy oktatási célú hasznosításra
További információ
Részletes dokumentáció és személyes megtekintés előzetes egyeztetés alapján.

Kiemelkedő Befektetési Lehetőség a VII. kerület szívében!
Budapest VII. kerületének központi részén kínálunk megvételre egy 1050 m²-es telken elhelyezkedő, 2400 m² hasznos alapterületű épületet, amely kivételes fejlesztési potenciállal rendelkezik.
Az ingatlan akár 3500 m²-re bővíthető / újraépíthető, így ideális választás nagy volumenű beruházásokhoz.
Lehetséges hasznosítás:
- lakóépület (kb. 40–50 lakás)
- irodaház
- hotel (akár 105 szoba)
- cégközpont
- magánklinika
Parkolás:
- 2 szintes mélygarázs kialakítható
- vagy liftes parkolórendszerrel 40–61 férőhely
Az ingatlan kiváló tömegközlekedési kapcsolatokkal rendelkezik, frekventált elhelyezkedése miatt minden fontos szolgáltatás könnyen elérhető.
A jelenlegi épület azonnal hasznosítható, ugyanakkor a fejlesztési tervek rugalmasan alakíthatók az új tulajdonos igényei szerint.
✔️ Belvárosi lokáció
✔️ Jelentős fejlesztési potenciál
✔️ Többféle hasznosítási lehetőség
✔️ Befektetők számára ideális
Irányár: 1,2 milliárd Ft
Kapcsolat
Kérjük, add meg adataid és a lehető leghamarabb felvesszük veled a kapcsolatot.
